We found 0 results. View results

PRO2625
Moderno chalet de obra nueva

Obra nueva
1.215.000 €

Resumen

  • Updated On:
  • enero 30, 2025
  • 4 Bedrooms
  • 3 Bathrooms
  • Garaje privado Garages
  • 212 m2
  • 723 m2

Descripción

Proyecto de moderno chalet de obra nueva con licencia de obra ya concedida. Este chalet ha sido diseñado destacando su moderno diseño y su práctica distribución.

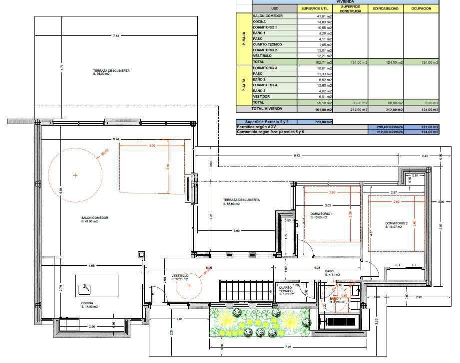
Ubicado en una parcela de 723 la vivienda cuenta con 212 metros cuadrados construidos distribuidos en dos plantas. En la planta principal encontramos un amplio salón comedor de unos 40m2, la cocina abierta cre4ando une espacio diáfano ideal para disfrutar en familia, dos dormitorios y un baño completo.

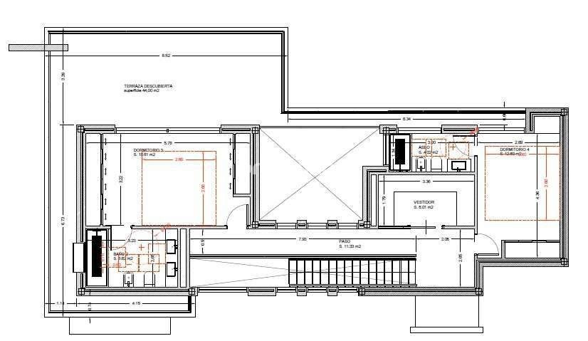
En la planta superior se ubican otros dos dormitorios, ambos con baño en suite y uno de ellos con un amplio vestidor que hará las delicias de los amantes de la moda. Además desde cualquiera de estos dormitorios podrás acceder a la amplia terraza de 44m2.

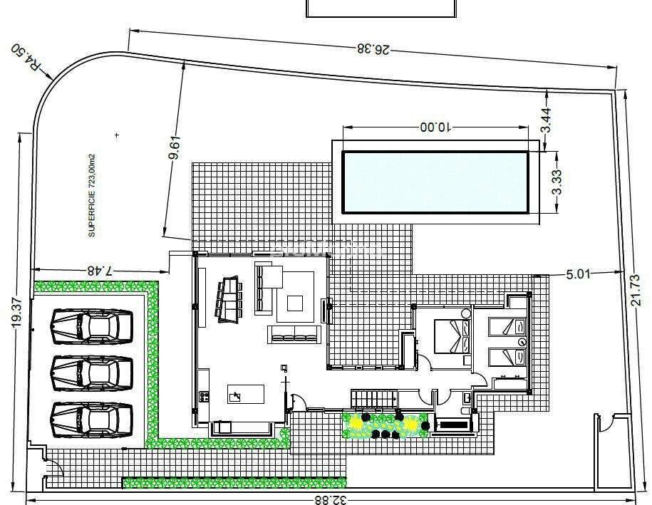
En la parte exterior podemos disfrutar de un bonito jardín mediterráneo, piscina privada de 10×3,33m , y amplias terrazas rodeando prácticamente la totalidad de la vivienda. Además cuenta con zona de parking para unos 3 vehículos.

Other Features
Aire acondicionado
Buen estado
Cocina equipada
Electrodomésticos
Jardín Privado
Luminoso
Obra nueva
Piscina privada
Suelo porcelánico
Terraza
Ventanas Climalit
Vistas al Montgó
Property Id : 35961
Price: 1.215.000 €
Property Size: 212 m2
Property Lot Size: 723 m2
Bedrooms: 4
Bathrooms: 3
Referencia: PRO2625
Garage: Garaje privado
Número Plantas: 2

Contact Me

Call WhatsApp

Propiedades Similares

PRO2876
Apartamento en primera línea

499.000 €
Apartamento en primera línea de playa en Las Marinas (Denia) VIVIENDA EN EXCLUSIVA DE PROM ...
2 1 80 m2details

PRO3051
Impresionante ático con vistas

590.000 € Antes 625.000€
Te presentamos este exclusivo ático de 330 m² de superficie distribuido en dos plantas, ub ...
4 3 320 m2details
49

PRO2955
Casa de pueblo en baix la mar

530.000 €
Casa de pueblo en venta en el barrio de Baix la mar en Dénia. Descubre la auténtica esenci ...
4 2 218 m2details

Compare Listings

Daniel Saldaña Pardo
This site is registered on wpml.org as a development site. Switch to a production site key to remove this banner.