Descripción
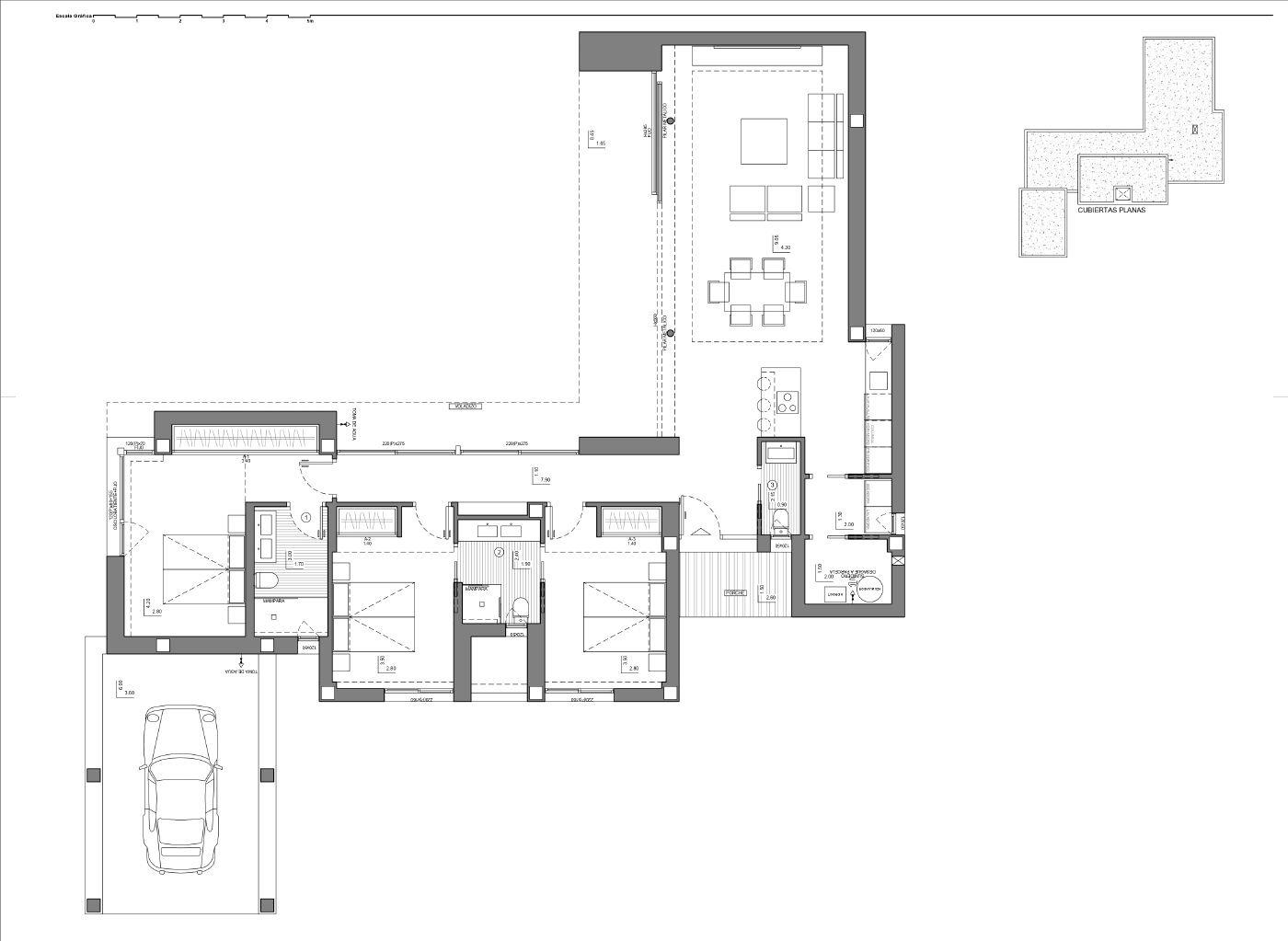
Espectacular villa de obra nueva en Cumbres de sol. Villa de obra nueva en venta en Cumbres del sol (Alicante). Descubre tu oasis en Villa Nara! Esta residencia redefine la armonía entre interiores y exteriores, fusionando espacios para crear ambientes luminosos y funcionales. Su diseño en forma de L abraza un jardín central, abriéndose hacia una piscina infinita que se desdibuja con el horizonte del Mediterráneo.
Esta villa de dos niveles te sumerge en una experiencia única. En el nivel superior, el área de descanso ofrece dos dormitorios con un baño compartido y una suite principal con baño propio y vestidor. Cada habitación brinda vistas panorámicas que regalan serenidad y calma.
La planta baja alberga el corazón de la casa: un espacio diáfano que une entrada, aseo, un amplio salón comedor y una cocina integrada. Esta zona fluye sin esfuerzo hacia el exterior, abrazando la terraza y la piscina en un juego perfecto de continuidad.
Villa Nara fusiona el estilo contemporáneo con la esencia mediterránea, equilibrando la modernidad con la tradición. El jardín, adornado con flora aromática, te conecta con la naturaleza en cada paso.
Esta villa de obra nueva en venta en Cumbres del sol (Alicante) es más que una propiedad, es un sueño hecho realidad, diseñado para aprovechar al máximo la vida y crear recuerdos imborrables en un escenario de ensueño. Sumérgete en un mundo de lujo, comodidad y belleza, donde la arquitectura y la naturaleza se entrelazan en una sinfonía perfecta: Villa Nara te espera para hacer tus sueños realidad. ¡Ven y haz de este lugar tu hogar!.




























